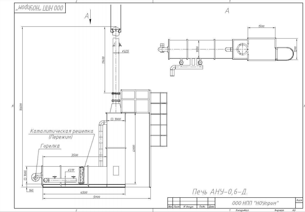
Печь АНУ -0.6-Д предназначена для утилизации низкокалорийных газов окисления при производстве битума и других технологических процессов
| Наименование | Значение |
|---|---|
|
Мощность горелочного устройства, МВт |
0.6 |
|
Среда для утилизации |
газы окисления |
|
Среда для нагрева |
Термальное масло |
|
Топливо |
Природный газ, мазут, ДТ |
|
Температура нагрева газа для сжигания, С |
800 |
|
Наличие каталитической решетки |
Да |
|
Площадь змеевика конвективной камеры камеры, м² |
18 |
|
Температура масла на входе, С |
150 |
|
Температура масла на выходе, С |
250* |
|
Производительность по газам окисления м3/час |
500 |
|
Производительность по термальному маслу кг/час |
3000 |
|
Допустимое давление в змеевике при максимальной температуре, МПа |
1,0 |
|
Температура дымовых газов не выше, С |
400 |
|
Допустимая температура корпуса не выше, С |
60 |
|
Минимальная температура окружающего воздуха, С |
−40(-70) |
|
Полнота сгорания , % |
99 |
|
Взрывной предохранительный клапан |
да |
|
Теплоизоляция корпуса, футеровка |
да |
|
Общая масса, кг |
5250 |
|
Габаритные размеры корпуса (ДхШхВ) , мм |
4500х1000х16600 |
*Производительность печи при заданном интервале нагрева
