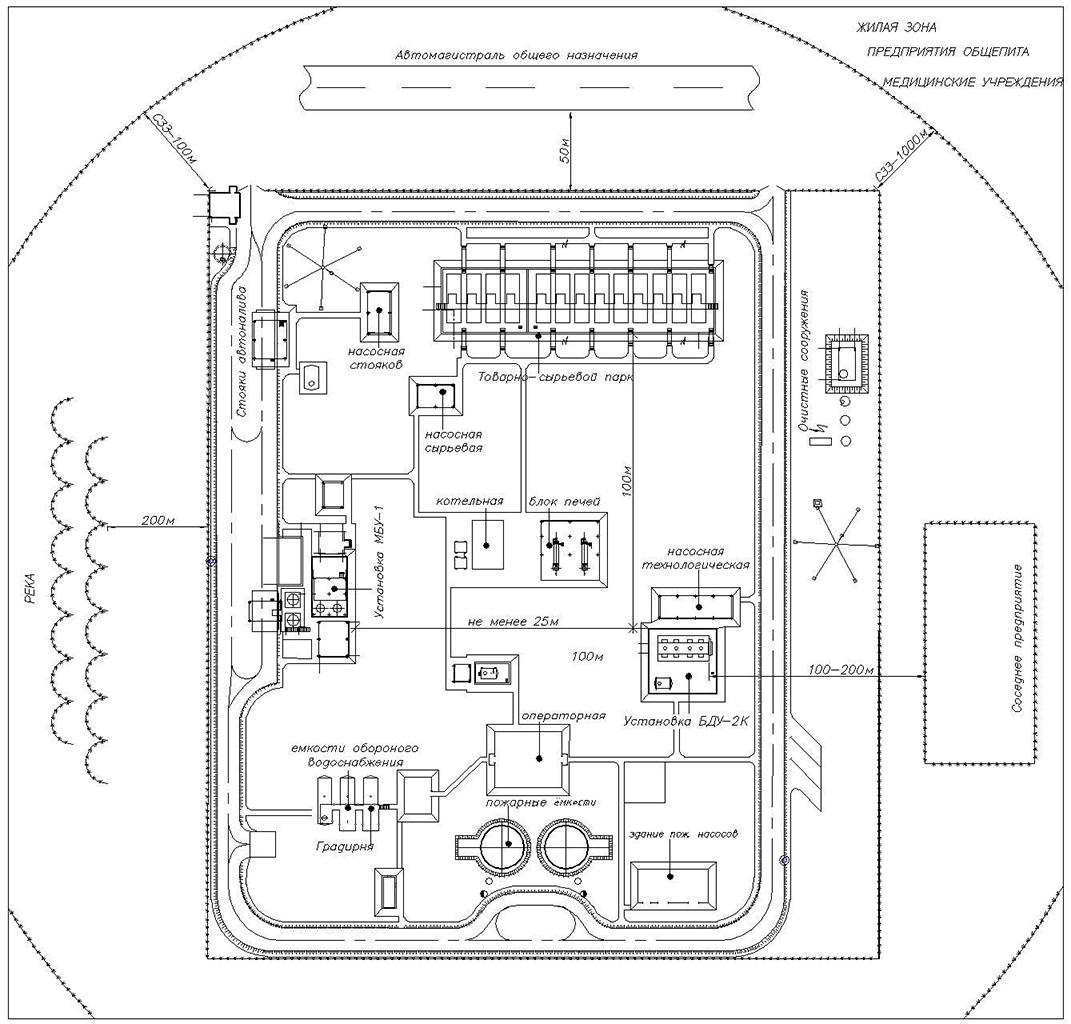
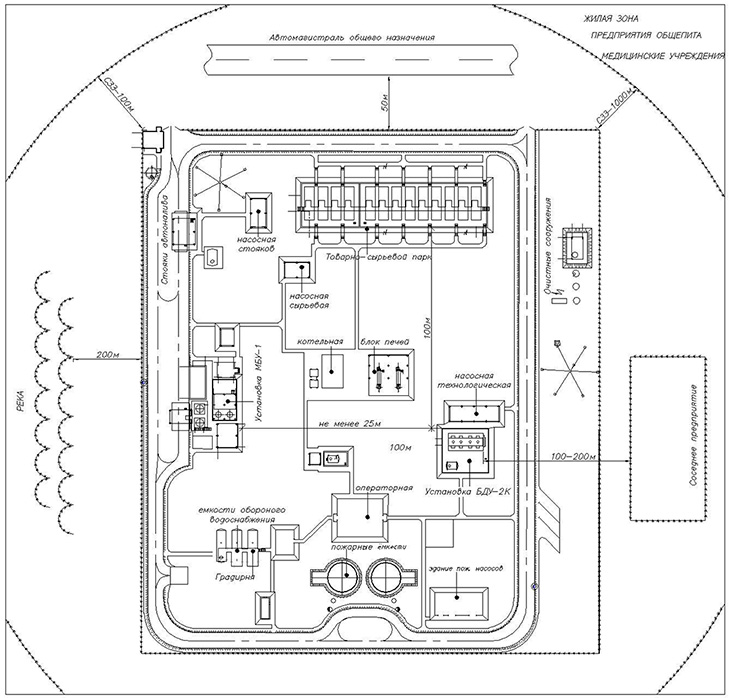
Описание инфраструктуры предприятия по первичной переработке нефти
Сырьевой и товарный резервуарный парк
Представляет собой горизонтальные или вертикальные резервуары, с системой приёма сырья и отгрузкой готовой продукции
Исходя из практики проектирования для обеспечения нормальной работы установки требуется сырьевой парк, рассчитанный на хранение пятидневного запаса сырья и готовой продукции.

Для установки, например СК-800-2КН, ёмкостной парк состоит из вертикальных резервуаров объёмом 100-400 м3, в количестве минимум два резервуара на каждый вид продукции. Необходимо уточнить, что один резервуар должен быть резервным (пустым) и его объем равен самому большому резервуару в парке. По нормам пожарной безопасности резервуарный парк должен находится в 100 м от установки.
Система приема сырья и отгрузки готовой продукции

В данную систему входят сливо-наливные устройства.
Прием сырья и отгрузка готовой продукции могут осуществляться как авто транспортом, так и железнодорожным транспортом.
Котельная

При работе установки используется водяной пар, который необходим для технологического процесса, пожарной безопасности, на теплоснабжение пароспутников и системы отопления зданий.
Пар обеспечивается котельной проектируемой на базе котлов отечественного или импортного производства.
Возможно модульное исполнение котельной, либо размещение котельной в капитальном здании.
Здания и сооружения

К капитальным зданиям проектируемым на предприятии относятся здания управления в составе помещений операторной, щитовой, лаборатории, здание пожарных насосов здание насосов оборотного водоснабжения.
Общая площадь всех капитальных зданий составляет
300-320 м2.
Материал исполнения зданий в зависимости класса огнестойкости может быть из кирпича или сендвич панелей. К сооружениям относятся навесы насосных, печей, представляющие собой металлоконструкции.
Система пожарной безопасности
Состоит, как правило, из 2-х резервуаров для хранения противопожарного запаса воды, емкостей запаса пенообразователя, пожарных насосов и системы сигнализации и пожарных трубопроводов с гидрантами. Объём запаса воды зависит от объема резервуарного парка, наличия ж/д эстакады, сейсмичности района строительства и рассчитывается в процессе проектирования. В среднем для предприятия с одной установкой запас воды на пожарные нужды составляет 800 —1000м3
Технологические коммуникации

Установка соединяется с объектами инфраструктуры предприятия трубопроводами, линиями КИПиА и линиями электроснабжения проложенными на опорах.
Все эти линии представляю собой технологические коммуникации.
Система водоснабжения и канализации
На предприятии требуется система водоснабжения и канализации, обеспечивающая установку, здания и сооружения водой и канализацией. Все стоки предприятия представляют собой загрязнённую воду, которая направляется на очистные сооружения. Очистные сооружения служат для очистки загрязнённых стоков предприятия. Представляю собой систему модульных фильтров и емкостей заглубленных ниже глубины промерзания.
Упрощенная блок схема взаимодействия объектов МИНИ НПЗ

ОПИСНИЕ ПРОИЗВОДСТВА углубленной переработки нефти
Комплексная переработка нефти с целевым получением таких продуктов как бензиновая, керосиновая и дизельная фракции, а также масляных фракций печного топлива и битумов дорожных и строительных марок осуществляется благодаря совместной работе установок СК-800-2КН и МБУ-3. При этом допускается полная автономная работа каждой установки. Глубина переработки всего НПЗ при таком комплексе достигает 90 %.

В качестве сырья для комплекса используется нефть. После того, как из нефти на установке СК-800-2КН отбирают бензиновую, керосиновую и дизельную фракции, получившийся мазут направляется в битумную установку МБУ-3 где из него извлекают вакуумный газойль с целью получения гудрона. Полученный гудрон окисляют до битума.
Материальный баланс комплекса углубленной переработки нефти
Распределение доли продуктов получаемых из 100% нефти
Материальный баланс рассчитан для среднетрубной малопарафинистой и высокосмолистой нефти с содержанием светлых фракций до 50 % получаемых за счет ректификации на установке СК-800-2КН. Оставшиеся 50 % мазута, разделяются: часть мазута направляется в товарно-сырьевой парк, а часть направляется на установку МБУ-3 и служат для неё сырьем. Выход каждой фракции зависит от перерабатываемого сырья и может быть определён по паспорту на сырье.
